萨玛赫微水泥案例 | 跃然之上的灵动艺术

89方的跃层空间,不受困于功能划分空间,更为注重空间的共融来处理当下环境,以美末产品——萨玛赫微水泥联结整体空间风格,以生活空间的开放度为思量打造专属的美学家居氛围。

整体空间皆采用美末产品——萨玛赫微水泥打造统一风格,楼梯旋转面也采用同款材料使得空间更加流畅,跃动感十足。

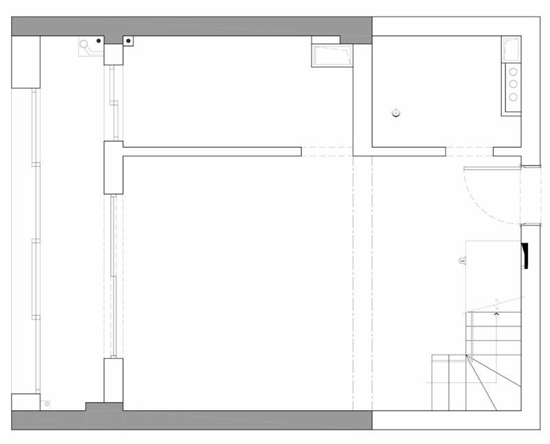
一楼为客餐厨的公共空间,综合空间面积与功能的需求,将原本区域间所设墙体拆除,凭借物件本身及其摆放再定义空间模块。

充分利用顶部空间的视觉价值,蜿蜒灯带游走于墙壁之上,借用线条逶迤之态塑造灵动视感。其中美末产品——萨玛赫微水泥在其中用大地色底色联结空间的每一处细节,不论墙面还是顶面甚至地面都显得相得益彰,毫无因连接而产生的违和感。

连接楼层间的构件以更具艺术感的螺旋式呈现,轻盈体态也是减轻楼梯于视觉空间上的负担。

拆除墙体后的此区域以开放式厨房展现,餐厨空间互借互助最大化调度空间面积。

萨玛赫微水泥拥有着独特的搭配能力,所以空间的软装与其搭配的和谐均衡,于无形中优化空间高级质感氛围。

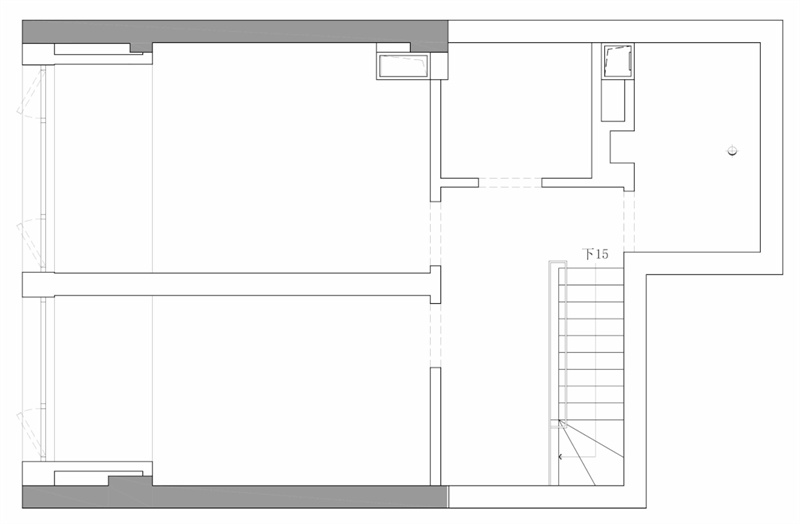
二楼为更具私密化的个人空间,由两居改为一居,优化区域功能与居者当下生活更为适配。同样延续了一楼的微水泥质感,使得二楼的个人空间更具简约自然的质感,突显业主高级的品味。

萨玛赫微水泥携手菲拉设计,以实物为媒介,以具象为载体,打造统一和谐美学空间。


项目信息:

设计机构:菲拉设计

项目地址:浙江杭州 ·龙湖滟澜山

项目类型:硬装设计,软装宅配

使用材料:西班牙萨玛赫微水泥

项目面积:89

项目户型:跃层

摄影师:林峰